ランキング参加中!
良ければクリックしてください!
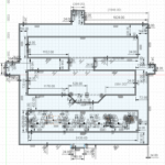
ようやくポケモンタワーの土台の計算が完了しました。
想像以上に階段部分のモデリングが難しく、かなり時間がかかってしまいました…
ポケモンタワーの土台のモデリングがほぼできました
階段の高さと幅の計算に苦戦していました。
どうやら正面や斜めから見ると、四方が同じ傾きに見えるのですが、そうだとうまく階段の形状が作れなかったです。

そこで、正面は傾きを小さくして、奥行きを広げてあげるとうまく作れました。
これは実際に作ってみるまで分からなかったですね…
次の目標
引き続き、土台のモデリングを進めていきます。
土台部分は残りは階段の模様作りですね。
これはテクスチャを設定するのではなく、自分で模様を作ります。